公社賃貸住宅
レスポワール錦 <2階203号室>
物件概要
賃料・初期費用
58,000円
-
共益費4,000円
-
敷金/礼金家賃2ヶ月分 / なし
-
保証会社保証料ー
物件概要
-
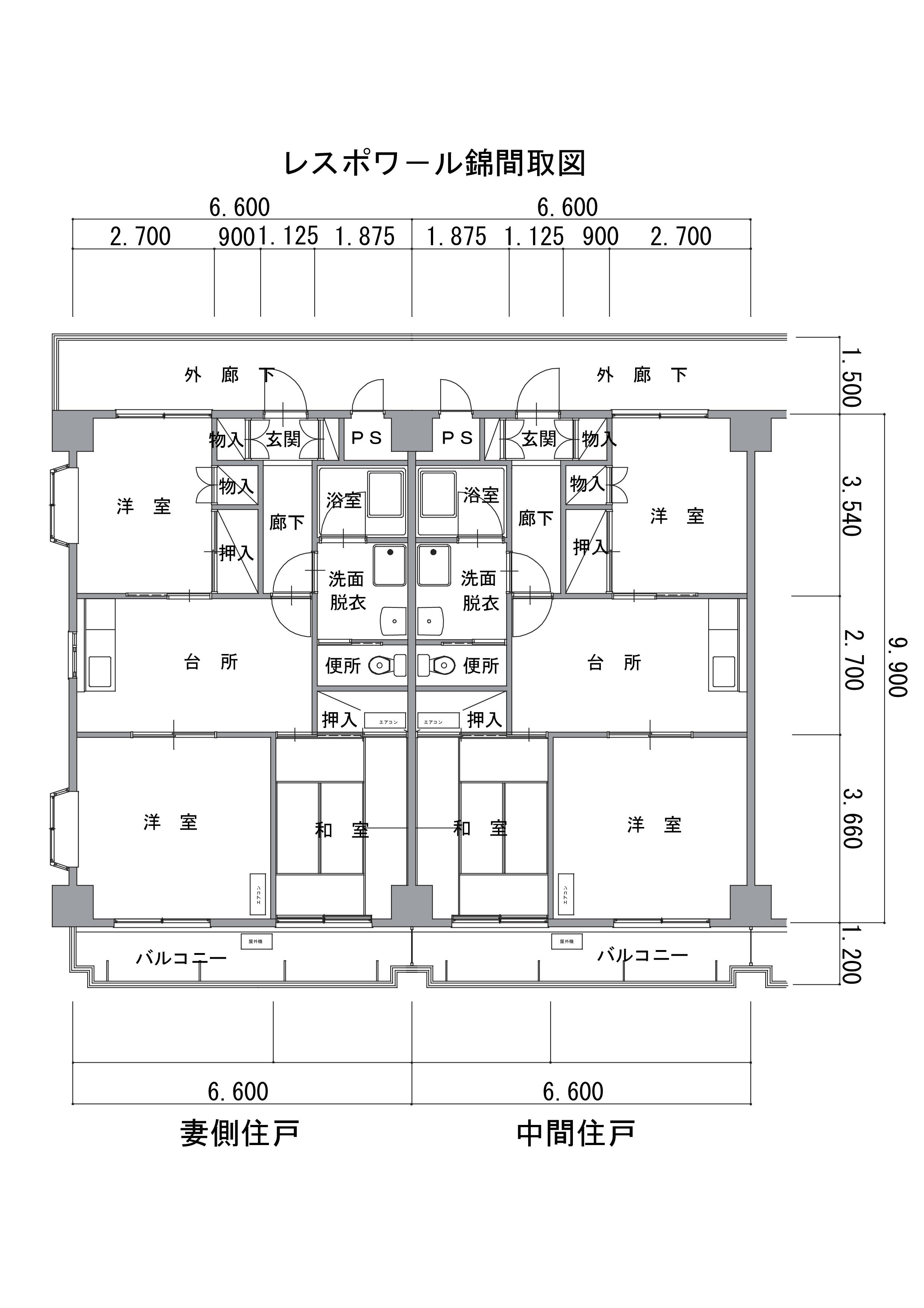
間取り3DK
-
築年数1993年
-
専用面積65.34m²
-
建物種別公社賃貸住宅
-
構造・建階 / 階高層耐火 地上6階 / 2階
-
住宅タイプ一般
-
総戸数20
-
駐車場空き有り ¥3,144~¥5,238
-
所在地桐生市錦町3丁目2番28
-
アクセスJR桐生駅から1,300m
部屋の特長と設備
エレベーター、都市ガス、鉄筋コンクリート
間取り詳細情報
-
- 型3DK
- 専用面積65.34m²
- 詳細8/6/和6/DK













