公社賃貸住宅
井野公社賃貸住宅 42-B棟 <2階14号室>
物件概要
賃料・初期費用
27,700円
-
共益費600円
-
敷金/礼金家賃3ヶ月分 / なし
-
保証会社保証料ー
物件概要
-
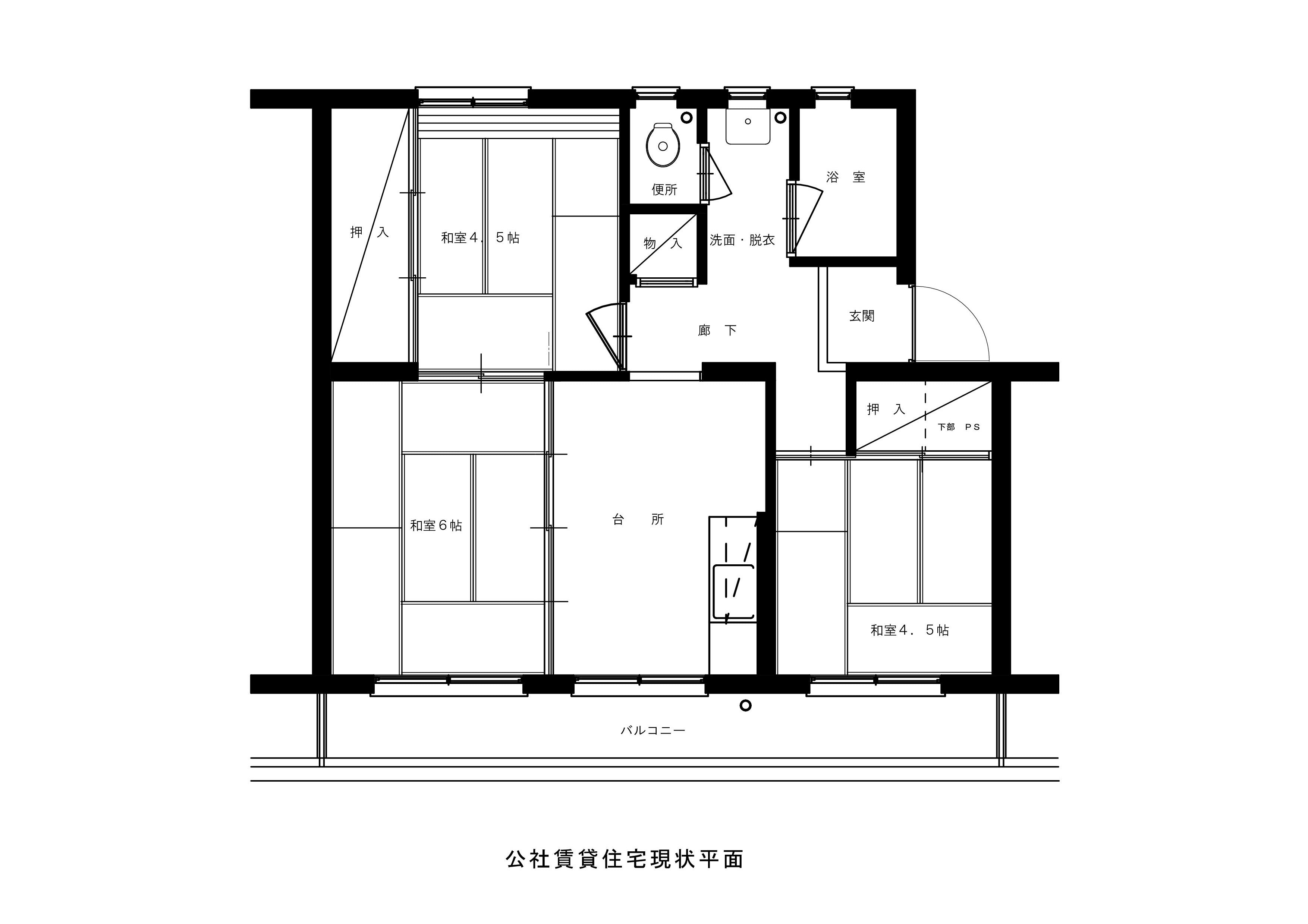
間取り3DK
-
築年数1967年
-
専用面積48.36m²
-
建物種別公社賃貸住宅
-
構造・建階 / 階中層耐火 地上4階 / 2階
-
住宅タイプ一般
-
総戸数16
-
駐車場空き有り ¥2,200~¥3,300
-
所在地高崎市井野町62番地1
-
アクセスJR井野駅から200m
部屋の特長と設備
間取り詳細情報
-
- 型3DK
- 専用面積48.36m²
- 詳細6/4.5/4.5/DK













