県営住宅
萩の宮 1996-A <4階建>
物件概要
-
建物種別県営住宅
-
所在地藤岡市篠塚633
-
家 賃¥22,300~¥48,300
-
最寄駅JR群馬藤岡駅から3,130m
-
駐車場空き有り ¥3,300
-
築年数1997年
-
構造・建階中層耐火 地上4階
-
総戸数26
-
空室
各種諸情報
集中プロパン
間取り詳細情報
-
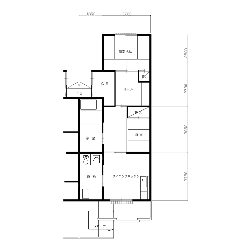
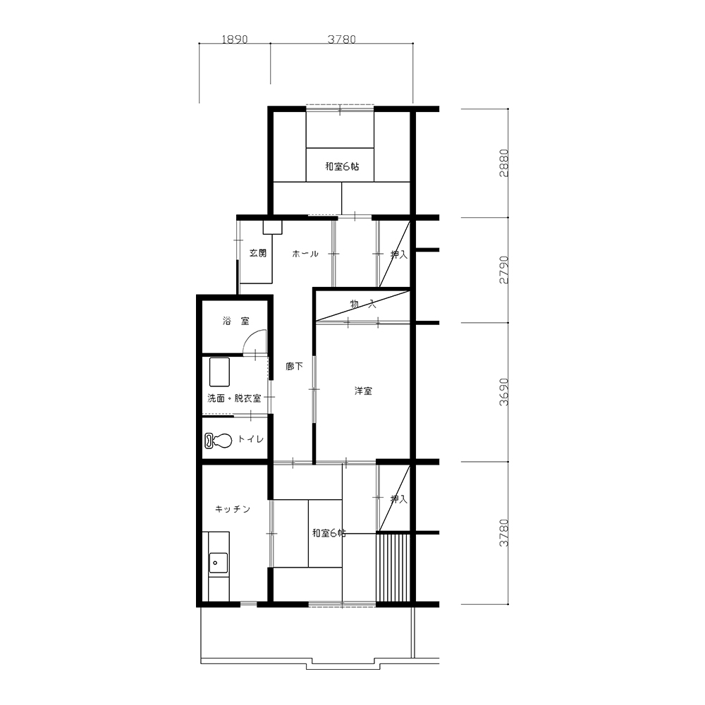
2DK
- 専用面積66.74m²
- 詳細(車イス)6/3/DK、水洗トイレ、浴槽釜設置
-
2LDK+S
- 専用面積66.74m²
- 詳細(車イス)6/洋6/LDK/S、水洗トイレ、浴槽釜設置
-
3K
- 専用面積66.74m²
- 詳細6/6/洋6/K、水洗トイレ、浴槽釜設置
-
3LDK
- 専用面積73.62m²
- 詳細6/6/洋6/LDK、水洗トイレ、浴槽釜設置
駐車場情報
- 空き状況空き有り
- 駐車料金月額:¥3,300
周辺環境
- 410mあけぼの保育園
- 470m動堂郵便局
- 1,100m篠塚病院
- 1,260m藤岡市立美土里小学校
- 2,190m藤岡市役所
- 3,170m藤岡市立西中学校
本物件の空室状況のご確認とお申込みについて
まずはご入居のご相談を下記のいずれかでお願いいたします。
詳しいご案内をいたしますので、まずは公社管理部管理課までご連絡ください。
お申込みには入居資格を満たす必要があります。詳しくは「入居資格について」ページをご覧ください。
また、ご入居できるかを確認できる「かんたんシミュレーション」もご活用ください。
-
<お電話にてご相談の場合>
-
<メールにてお問い合わせの場合>





