県営住宅
山王 1976-D <4階建>
物件概要
-
建物種別県営住宅
-
所在地伊勢崎市山王町1074-1
-
家 賃¥13,200~¥37,900
-
最寄駅東武伊勢崎線 新伊勢崎駅から3,030m
-
駐車場空き有り ¥2,200~¥3,300
-
築年数1976年
-
構造・建階中層耐火 地上4階
-
総戸数24
-
空室3F
各種諸情報
浴室風呂釜(バランス式)、集中プロパン
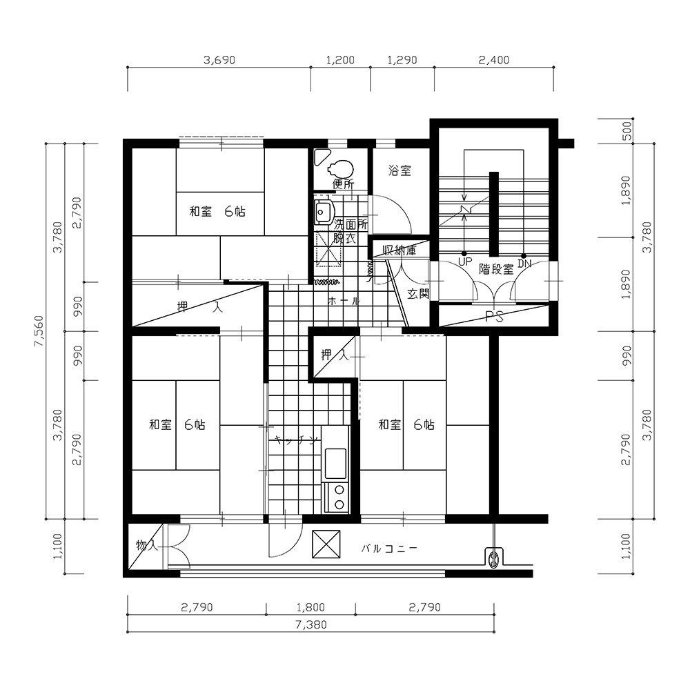
間取り詳細情報
-
3K
- 専用面積51.25m²
- 詳細6/6/6/K、水洗トイレ、浴槽釜設置
-
4K
- 専用面積69.96m²
- 詳細6/6/6/4.5/K、水洗トイレ、浴槽釜設置
駐車場情報
- 空き状況空き有り
- 駐車料金月額:¥2,200~¥3,300
周辺環境
- 80mしいの実保育園
- 90m伊勢崎市立広瀬小学校
- 300m広瀬幼稚園
- 510m群馬銀行伊勢崎南支店
- 800m山王郵便局
- 1,330m伊勢崎市立第二中学校
- 1,700m伊勢崎市役所
本物件の空室状況のご確認とお申込みについて
まずはご入居のご相談を下記のいずれかでお願いいたします。
詳しいご案内をいたしますので、まずは公社管理部管理課までご連絡ください。
お申込みには入居資格を満たす必要があります。詳しくは「入居資格について」ページをご覧ください。
また、ご入居できるかを確認できる「かんたんシミュレーション」もご活用ください。
-
<お電話にてご相談の場合>
-
<メールにてお問い合わせの場合>



