県営住宅
二本松 1973-B <4階建>
物件概要
-
建物種別県営住宅
-
所在地桐生市相生町3-470
-
家 賃¥10,200~¥21,500
-
最寄駅わたらせ渓谷線 運動公園駅から1,190m
-
駐車場空き有り ¥2,200~¥3,300
-
築年数1974年
-
構造・建階中層耐火 地上4階
-
総戸数24
-
空室3F、4F
各種諸情報
浴室風呂釜(バランス式)、都市ガス
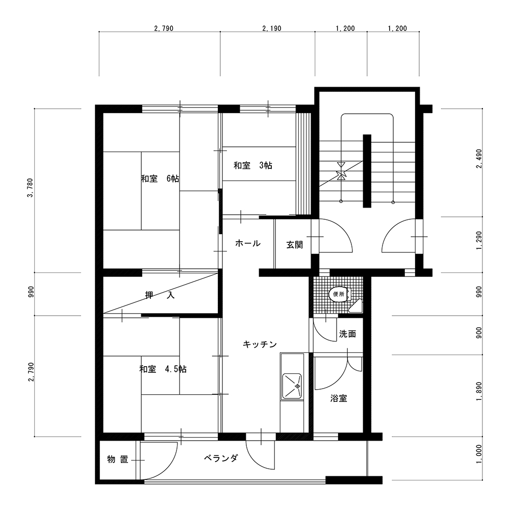
間取り詳細情報
-
3K
- 専用面積42.18m²
- 詳細6/4.5/3/K、水洗トイレ、浴槽釜未設置
駐車場情報
- 空き状況空き有り
- 駐車料金月額:¥2,200~¥3,300
周辺環境
- 560m桐生運動公園
- 630mすみれ保育園
- 2,070m桐生市立相生小学校
- 2,610m桐生市立相生中学校
- 2,610m高木病院
- 4,530m桐生市役所
本物件の空室状況のご確認とお申込みについて
まずはご入居のご相談を下記のいずれかでお願いいたします。
詳しいご案内をいたしますので、まずは公社管理部管理課までご連絡ください。
お申込みには入居資格を満たす必要があります。詳しくは「入居資格について」ページをご覧ください。
また、ご入居できるかを確認できる「かんたんシミュレーション」もご活用ください。
-
<お電話にてご相談の場合>
-
<メールにてお問い合わせの場合>


