県営住宅
上佐野 1997-F <10階建>
物件概要
-
建物種別県営住宅
-
所在地高崎市上佐野町1096-1
-
家 賃¥33,300~¥65,400
-
最寄駅JR高崎駅から1,700m
-
駐車場空き有り ¥1,650~¥3,300
-
築年数1999年
-
構造・建階高層耐火 地上10階
-
総戸数60
-
空室
各種諸情報
エレベーター、都市ガス
間取り詳細情報
-
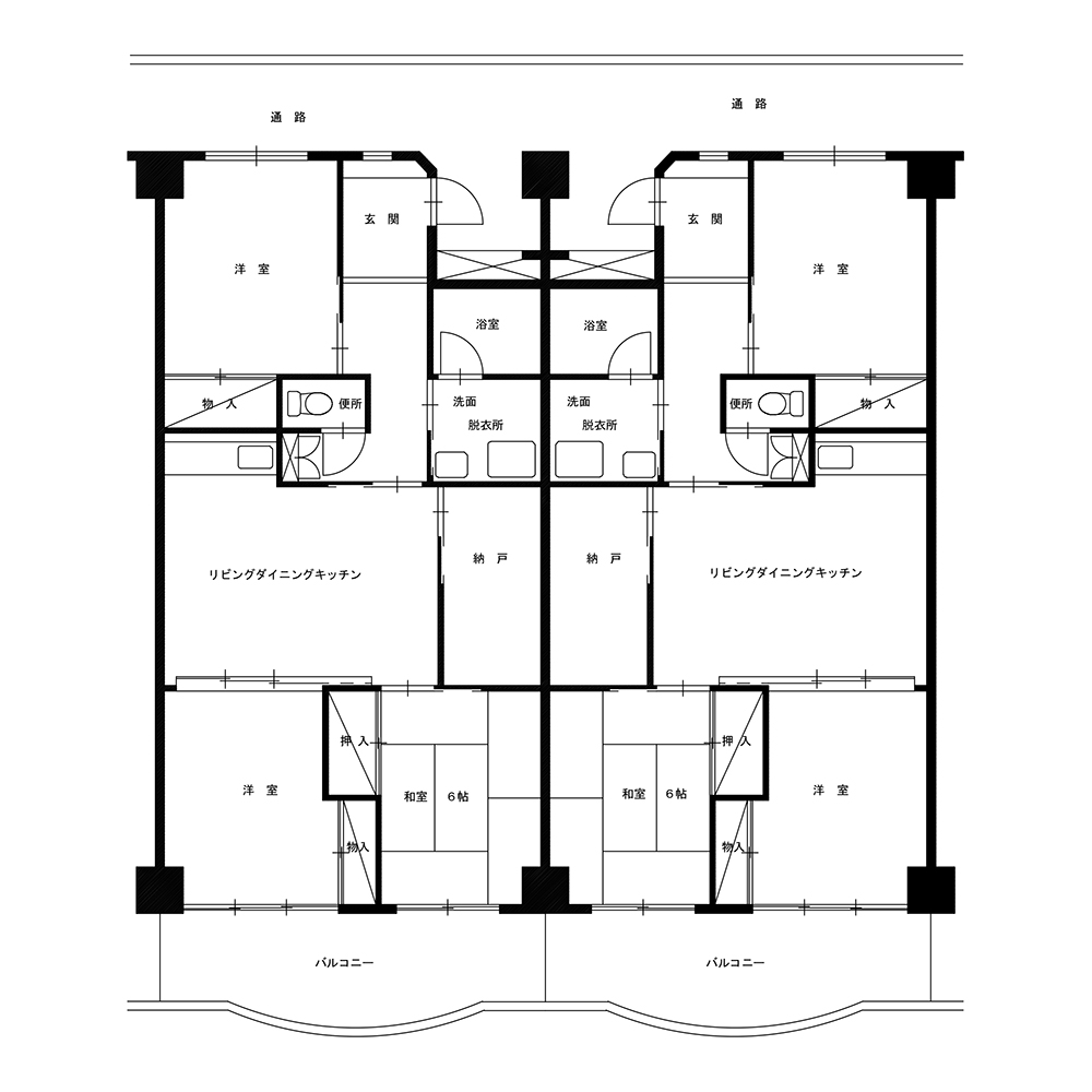
3LDK
- 専用面積77.39m²
- 詳細6/洋7/洋6/LDK、水洗トイレ、浴槽釜設置
-
3LDK
- 専用面積77.39m²
- 詳細●(子育)6/洋7/洋6/LDK、水洗トイレ、浴槽釜設置
駐車場情報
- 空き状況空き有り
- 駐車料金月額:¥1,650~¥3,300
周辺環境
- 400mベイシア上佐野店
- 630m高崎市立佐野小学校
- 700m鉢の木保育所
- 1,080m高崎市立佐野中学校
- 1,420mビックカメラ高崎東口店
- 1,440m群馬銀行高崎栄町支店
- 2,170m高崎市役所
本物件の空室状況のご確認とお申込みについて
まずはご入居のご相談を下記のいずれかでお願いいたします。
詳しいご案内をいたしますので、まずは公社管理部管理課までご連絡ください。
お申込みには入居資格を満たす必要があります。詳しくは「入居資格について」ページをご覧ください。
また、ご入居できるかを確認できる「かんたんシミュレーション」もご活用ください。
-
<お電話にてご相談の場合>
-
<メールにてお問い合わせの場合>


