県営住宅
元総社第二 2013-F <3階建>
物件概要
-
建物種別県営住宅
-
所在地前橋市元総社町1281-1
-
家 賃¥21,100~¥41,400
-
最寄駅JR新前橋駅から1,900m
-
駐車場空き有り ¥3,300
-
築年数2014年
-
構造・建階中層耐火 地上3階
-
総戸数11
-
空室
各種諸情報
エレベーター
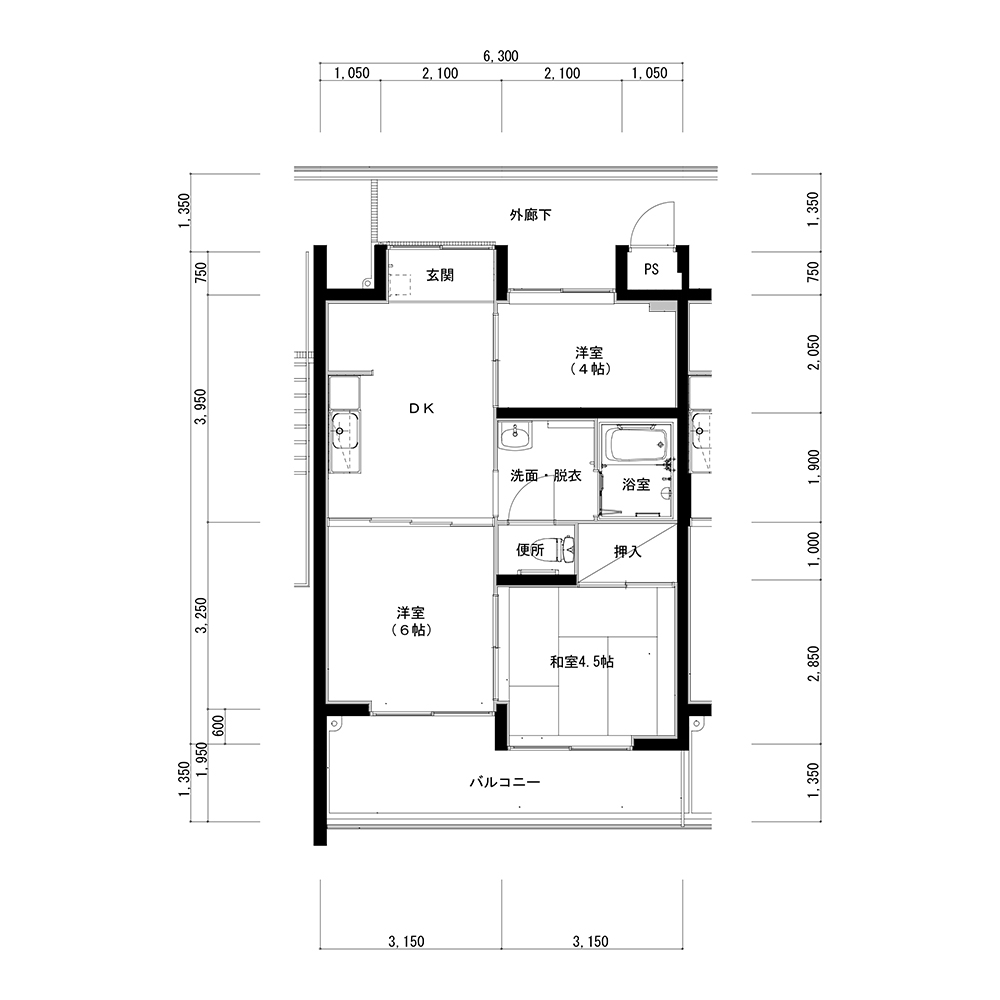
間取り詳細情報
-
3DK
- 専用面積48.98m²
- 詳細▲4.5/洋4/洋6/DK、水洗トイレ、浴槽釜設置 ※高齢者・障がい者(2人以上)
駐車場情報
- 空き状況空き有り
- 駐車料金月額:¥3,300
周辺環境
本物件の空室状況のご確認とお申込みについて
まずはご入居のご相談を下記のいずれかでお願いいたします。
詳しいご案内をいたしますので、まずは公社管理部管理課までご連絡ください。
お申込みには入居資格を満たす必要があります。詳しくは「入居資格について」ページをご覧ください。
また、ご入居できるかを確認できる「かんたんシミュレーション」もご活用ください。
-
<お電話にてご相談の場合>
-
<メールにてお問い合わせの場合>


