県営住宅
下細井 1977-E <4階建>
物件概要
-
建物種別県営住宅
-
所在地前橋市下細井町349-1
-
家 賃¥20,100~¥39,500
-
最寄駅上電 三俣駅から2,500m
-
駐車場空き有り ¥2,200~¥3,300
-
築年数1977年
-
構造・建階中層耐火 地上4階
-
総戸数32
-
空室4F
各種諸情報
浴室風呂釜(バランス式)、給湯設備、都市ガス
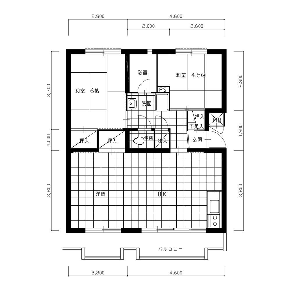
間取り詳細情報
-
2LDK
- 専用面積61.38m²
- 詳細6/4.5/LDK、水洗トイレ、浴槽釜設置
駐車場情報
- 空き状況空き有り
- 駐車料金月額:¥2,200~¥3,300
周辺環境
- 250m前橋市立鎌倉中学校
- 620m群馬大学附属中学校
- 950mフレッセイ白川店
- 1,080mコープリセロ細井
- 1,500m前橋市立桃木小学校
- 1,550mヤナイストアー三俣店
- 1,650m桃木保育園
- 3,250m前橋市役所
本物件の空室状況のご確認とお申込みについて
まずはご入居のご相談を下記のいずれかでお願いいたします。
詳しいご案内をいたしますので、まずは公社管理部管理課までご連絡ください。
お申込みには入居資格を満たす必要があります。詳しくは「入居資格について」ページをご覧ください。
また、ご入居できるかを確認できる「かんたんシミュレーション」もご活用ください。
-
<お電話にてご相談の場合>
-
<メールにてお問い合わせの場合>


