県営住宅
広瀬第二 1972-B <5階建>
物件概要
-
建物種別県営住宅
-
所在地前橋市広瀬町三丁目28番地4
-
家 賃¥12,500~¥47,100
-
最寄駅JR前橋大島駅から1,050m
-
駐車場空き有り ¥1,650~¥3,300
-
築年数1972年
-
構造・建階中層耐火 地上5階
-
総戸数26
-
空室1F、5F
各種諸情報
浴室風呂釜(壁掛け式)、エレベーター、都市ガス
間取り詳細情報
-
1DK
- 専用面積31.88m²
- 詳細洋4/DK、水洗トイレ、浴槽釜設置
-
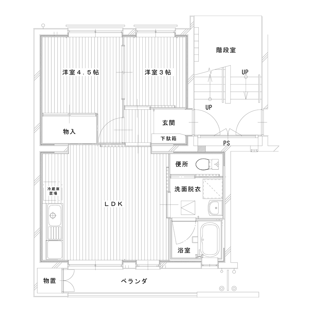
2DK
- 専用面積42.18m²
- 詳細洋4.5/洋3/DK、水洗トイレ、浴槽釜設置
-
2LDK
- 専用面積42.18m²
- 詳細洋4.5/洋3/LDK、水洗トイレ、浴槽釜設置
-
3LDK
- 専用面積54.43m²
- 詳細洋4/洋4/洋3/LDK、水洗トイレ、浴槽釜設置
-
4DK
- 専用面積61.81m²
- 詳細洋4.5/洋4/洋4/洋3.5/DK、水洗トイレ、浴槽釜設置
駐車場情報
- 空き状況空き有り
- 駐車料金月額:¥1,650~¥3,300
周辺環境
- 250m上毛病院
- 650m群馬銀行広瀬支店
- 730mフレッセイ広瀬店
- 800m長崎屋ホームセンター広瀬店
- 1,580m前橋市立わかば小学校
- 2,750m前橋市立春日中学校
- 5,300m前橋市役所
本物件の空室状況のご確認とお申込みについて
まずはご入居のご相談を下記のいずれかでお願いいたします。
詳しいご案内をいたしますので、まずは公社管理部管理課までご連絡ください。
お申込みには入居資格を満たす必要があります。詳しくは「入居資格について」ページをご覧ください。
また、ご入居できるかを確認できる「かんたんシミュレーション」もご活用ください。
-
<お電話にてご相談の場合>
-
<メールにてお問い合わせの場合>






