県営住宅
広瀬第二 1972-A <5階建>
物件概要
-
建物種別県営住宅
-
所在地前橋市広瀬町3-30-2
-
家 賃¥14,100~¥63,200
-
最寄駅JR前橋大島駅から1,050m
-
駐車場空き有り ¥1,650~¥3,300
-
築年数1972年
-
構造・建階中層耐火 地上5階
-
総戸数33
-
空室3F、4F、5F
各種諸情報
シングルマザー専用シェアハウス(3階のみ)、浴室風呂釜(壁掛け式・浴室リモコン・台所リモコン付)、エレベーター、都市ガス
間取り詳細情報
-
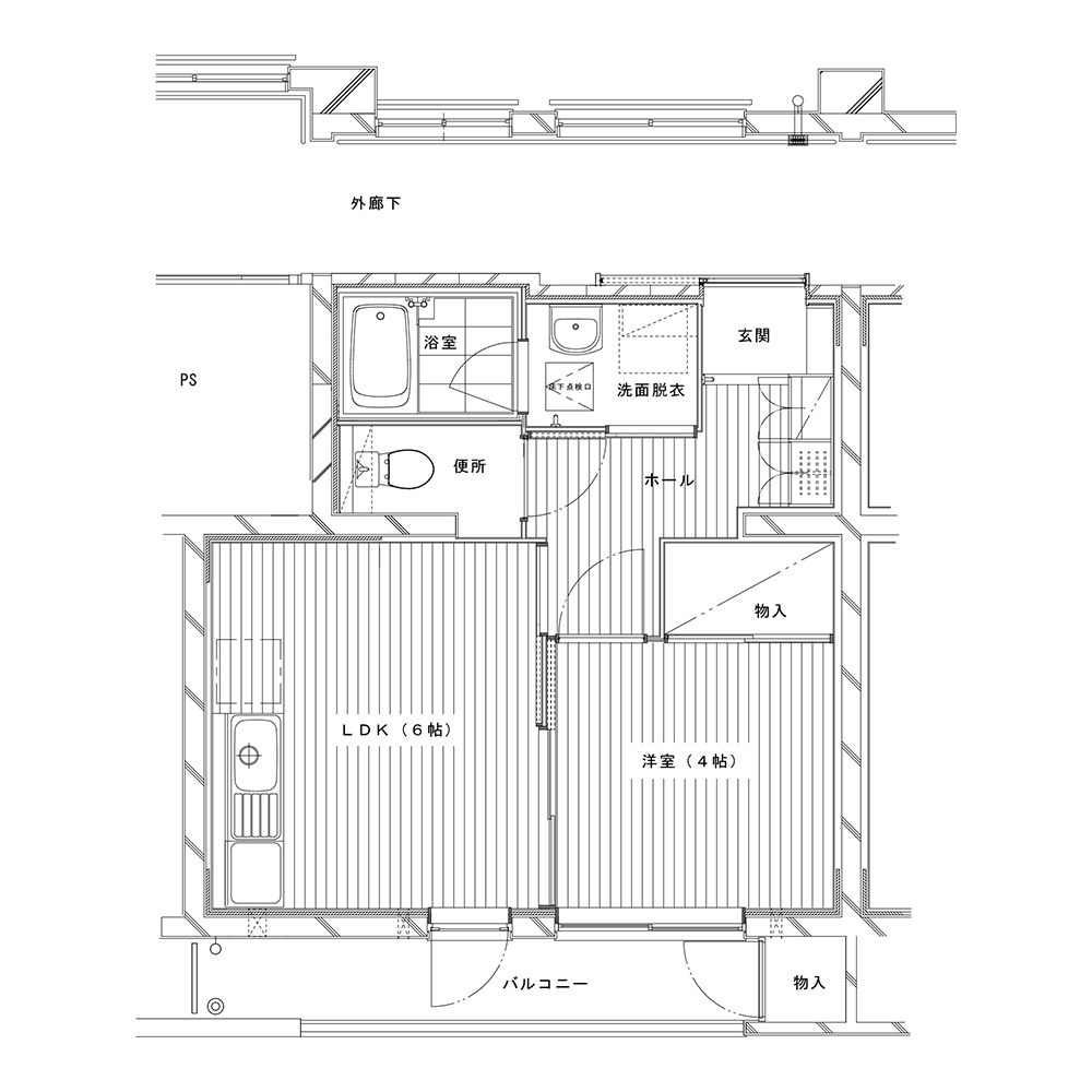
1LDK
- 専用面積41.32m²
- 詳細S:洋4/LDK、水洗トイレ、浴槽釜設置 ※シングルマザー専用シェアハウス
-
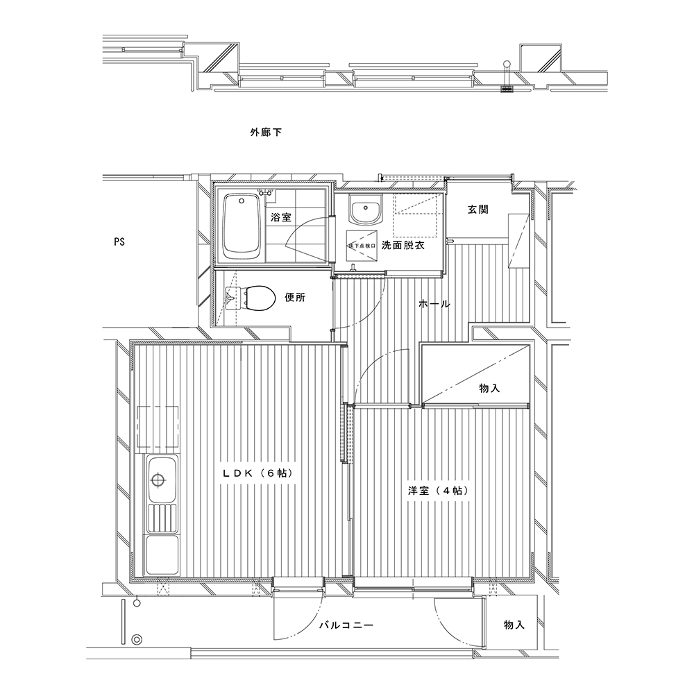
1LDK
- 専用面積35.37m²
- 詳細洋4/LDK、水洗トイレ、浴槽釜設置
-
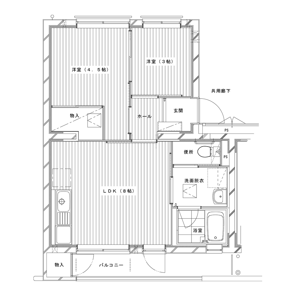
2LDK
- 専用面積42.99〜50.28m²
- 詳細S:洋4.5/洋3/LDK、水洗トイレ、浴槽釜設置 ※シングルマザー専用シェアハウス
-
2LDK
- 専用面積42.99〜50.28m²
- 詳細洋4.5/洋3/LDK、水洗トイレ、浴槽釜設置
-
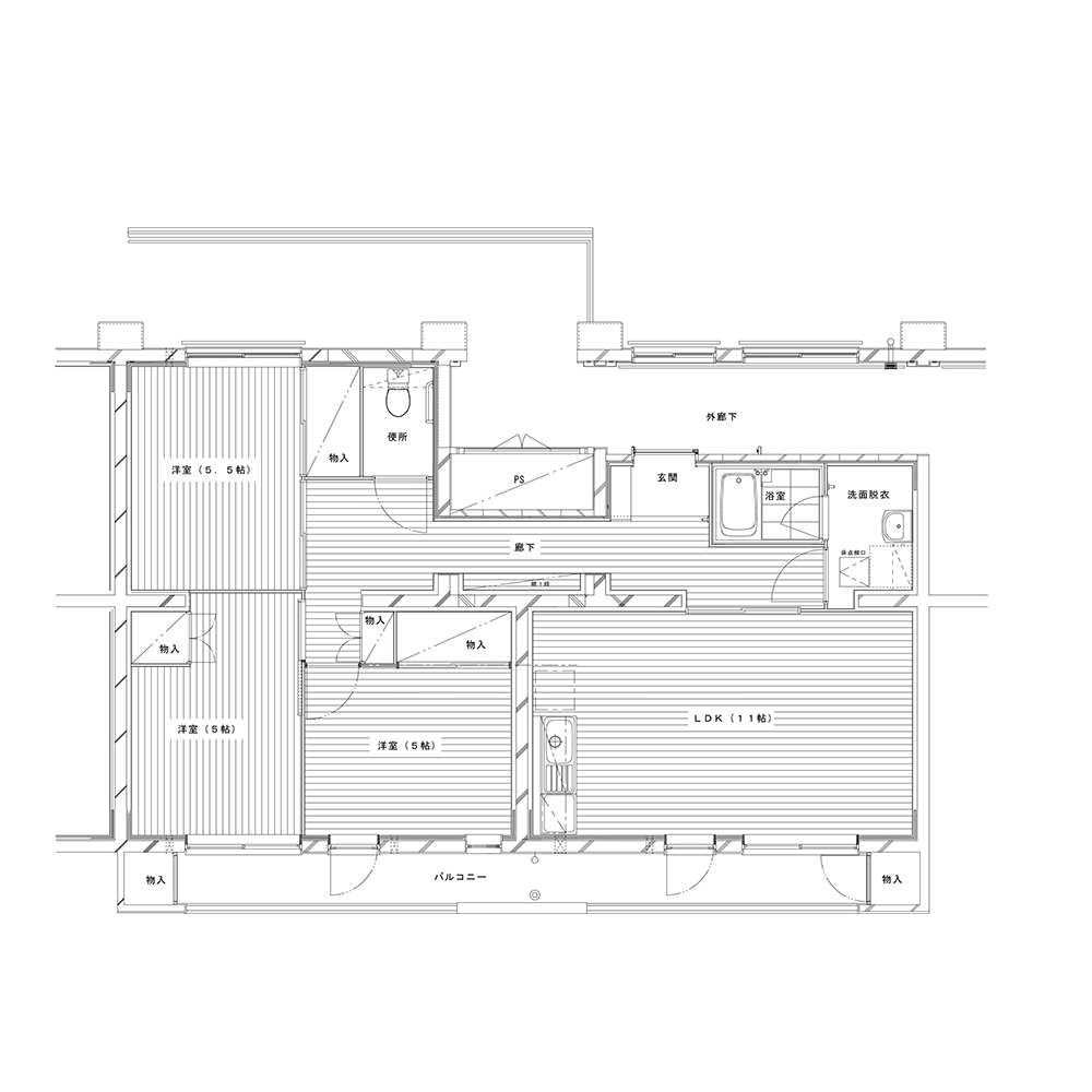
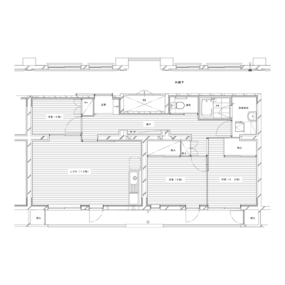
3LDK
- 専用面積81.4m²
- 詳細洋5.5/洋5/洋5/LDK、水洗トイレ、浴槽釜設置
-
3LDK
- 専用面積73.56m²
- 詳細洋5/洋4.5/洋3/LDK、水洗トイレ、浴槽釜設置
駐車場情報
- 空き状況空き有り
- 駐車料金月額:¥1,650~¥3,300
周辺環境
- 250m上毛病院
- 650m群馬銀行広瀬支店
- 730mフレッセイ広瀬店
- 800m長崎屋ホームセンター広瀬店
- 1,580m前橋市立わかば小学校
- 2,750m前橋市立春日中学校
- 5,300m前橋市役所
本物件の空室状況のご確認とお申込みについて
まずはご入居のご相談を下記のいずれかでお願いいたします。
詳しいご案内をいたしますので、まずは公社管理部管理課までご連絡ください。
お申込みには入居資格を満たす必要があります。詳しくは「入居資格について」ページをご覧ください。
また、ご入居できるかを確認できる「かんたんシミュレーション」もご活用ください。
-
<お電話にてご相談の場合>
-
<メールにてお問い合わせの場合>






