県営住宅
広瀬第一 1998HC <4階建>
物件概要
-
建物種別県営住宅
-
所在地前橋市広瀬町2-33
-
家 賃¥24,100~¥64,100
-
最寄駅JR前橋大島駅から900m
-
駐車場空き有り ¥1,650~¥3,300
-
築年数1999年
-
構造・建階中層耐火 地上4階
-
総戸数16
-
空室1F
各種諸情報
浴室風呂釜(壁掛け式)、給湯設備(有 (台所・洗面・浴室))、エレベーター、都市ガス
間取り詳細情報
-
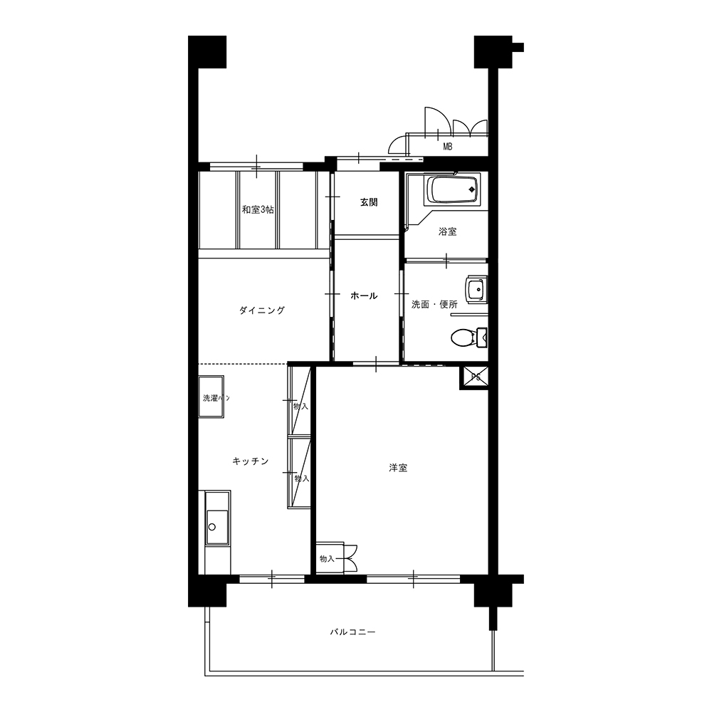
3DK+S
- 専用面積76.12m²
- 詳細6/6/洋6/DK/S、水洗トイレ、浴槽釜設置
-
2DK
- 専用面積56.35m²
- 詳細6/洋6/DK、水洗トイレ、浴槽釜設置
-
2DK
- 専用面積56.35m²
- 詳細(車イス)3/洋10/DK、水洗トイレ、浴槽釜設置
駐車場情報
- 空き状況空き有り
- 駐車料金月額:¥1,650~¥3,300
周辺環境
- 180mフレッセイ広瀬店
- 250m長崎屋ホームセンター広瀬店
- 350m群馬銀行広瀬支店
- 700m広瀬保育所
- 900m前橋市立天神小学校
- 930m上毛病院
- 2,040m前橋市立春日中学校
- 5,200m前橋市役所
本物件の空室状況のご確認とお申込みについて
まずはご入居のご相談を下記のいずれかでお願いいたします。
詳しいご案内をいたしますので、まずは公社管理部管理課までご連絡ください。
お申込みには入居資格を満たす必要があります。詳しくは「入居資格について」ページをご覧ください。
また、ご入居できるかを確認できる「かんたんシミュレーション」もご活用ください。
-
<お電話にてご相談の場合>
-
<メールにてお問い合わせの場合>




